Por ejempo: Today word comes down the real estate pike that fat cat hedge hog and notorious real estate size queen Philip Falcone and his sartorially courageous wife Lisa Maria have agreed to pay "about $700,000" to rent Stone Meadow Farm, a nearly new 18,000 square foot shingled sprawler in East Hampton, NY. That's nearly three quarters of a million bucks, children, for what we hear through the real estate gossip grapevine is just a two months summer rental. How's that for making even the reasonably rich feel financially impotent?


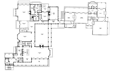
The current owner, theatrically-minded real estate heiress/entertainer (and self-described J.A.P.) Isabel Rose, acquired the 8-acre estate in 2009 after a bidding war with–you can't make this up, kids–Mister and Missus Falcone. She paid around $12,000,00o for the sprawling compound that–as per the floor plan included with marketing information from the time of the sale (shown above)–includes a three-floor L-shaped main house with 5 bedrooms, 9.5 bathrooms and 5 fireplaces. An attached guest house contains an additional 5 bedrooms, 4.5 bathrooms, 3 fireplaces, attached two-car garage and double-height living/dining/kitchen equipped with a phenomenally expensive brass-accented La Cornue cooker.Some of the children may recall that large-livin' pop chanteuse Mariah Carey leased Stone Meadow Farm for a short time in the summer of 2008 at a reported rate of $125,000 per week. Have mercy! Your Mama needs a gin & tonic in order to get our piddly little mind around spending that much money to rent a house for one week.
The savory floor plan for Stone Meadow Farm indicates the grandly proportioned house includes a master suite with private sitting room, bedroom with fireplace, one en suite pooper, two dressing rooms and a private courtyard with stone terrace and hot tub. The approximately 3,500 square foot finished basement contains a media room, play room with wet bar and fireplace, gym, spa facilities (massage, steam and sauna rooms) and a staff lounge while the extensive grounds feature stone courtyards and terraces, flat lawns, tree-dotted pastures, a swimming pool and pool houses, spa, tennis court and a postage stamp perfect white barn with five stalls for the ponies.
Mister and Missus Falcone, rumored and reported to be building a 13,000 square foot house in nearby Sagaponack, currently reside New York City. In 2008 the conspicuous consumers famously paid about $49,000,000–in cash–for financially troubled Bob Guccione's legendary palace of porn on East 67th Street.
The Falcone's have given the 25,000-plus square foot double-wide mansion a soup to nuts overhaul reported to include the installation of a 34-foot long indoor pool, movie theater with stadium seating and not one but two dressing rooms for the Missus, one with wet bar. Now children, no one likes to imbibe a boozy beverage (or three) as much as Your Mama but is that what happened here? Was that mesmerizing and ridiculous ensemble a result of drinking while dressing? We tease. In truth Your Mama j'adores a contrarian and as such we actually think Miss Falcone is kind of fab in a flashy-trashy rags to riches I don't give a fuck what all you lacquer-haired high society types think of me sort of way. Not everyone, dearies, is meant to wear an elegant and simple Carolina Herrera gown, you know? Some goils and boys require a little bad fashion to feel complete.
Anyhoo, the Falcone's massive manse was also planned to include two elevators, a gym with steam and sauna and a "press room" in the basement where Esmerelda Minimumwage spends her days not wrangling with the media but, rather, ironing. Naturally the house was outfitted with a comprehensive security system so advanced it can probably make a person disappear without a trace if they so much as look at the house in a way it somehow deems inappropriate or suspect.
floor plan: Corcoran